Автоматика и комплектующие для ворот
По будням: с 10.00 до 14.00. Далее только доставка,
Суббота: с 10.00 до 13.00. Далее только доставка
Адрес: Санкт-Петербург, улица Седова, 87, корп. 9
Личный кабинет
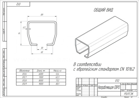
Направляющая ЕВРО для ворот массой до 800 кг 6 метров.
Направляющая балка в конструкции откатных ограждений задает направление для прямолинейного передвижения полотна. Внутри шины расположены роликовые опоры, по которым она перемещается. В сечении профиль представляет собой швеллер с загнутыми краями, что исключает соскальзывание полотна с роликовых опор. Направляющая шина серии ЕВРО длиной 6 м монтируется на откатные ворота с шириной проема до 4 м. Толщина стенки профиля – 4,5 мм. Габариты изделия (ШхВ) – 89х74 мм, вес профиля – 55,2 кг.
Производство направляющей шины осуществляется методом прокатки. Сырьем для изготовления выступает качественная европейская высокопрочная сталь. Применение современных станков при производстве направляющей позволяет получить изделие с минимальной гибкостью и высокой точностью:
Остальные размерные допуски соответствуют нормативам евростандарта EN 10162. Масса 1 м.п. шины ЕВРО составляет 9,2 кг. От направляющего профиля во многом зависит бесшумность и плавность перемещения полотна откатных ворот. Поверхность изделия защищена от ржавчины антикоррозийной смазкой. При монтаже направляющей внутренняя поверхность изделия не нуждается в смазке. Стыковка профилей, а также крепление шины к воротной створке осуществляется по инструкции производителя. При изготовлении двустворчатых откатных ворот допустимые силы F1 и F2 уменьшают в расчетах в 1,5 раза.
Мы находимся в Санкт-Петербурге
Адрес:
Санкт-Петербург, улица
Седова, 87, корп. 9
Режим работы:
По будням: с 10.00 до 14.00. Далее только доставка,
Суббота: с 10.00 до 13.00. Далее только доставка
Пишите нам на почту:
Vva-2001@yandex.ru